Verkocht onder voorbehoud:Korenmolen 1, 5481 MS Schijndel - Foto
Verkocht onder voorbehoud
+30

Korenmolen 1 5481 MS Schijndel € 495.000,- k.k.

  • Eengezinswoning
  • 4 kamers
  • 3 slaapkamers
  • Bouwjaar 1987
  • 280 m² perceeloppervlakte
  • 129 m² gebruiksoppervlakte
  • A Energielabel A

Beschrijving

Volledig gerenoveerde en instapklare gezinswoning met energielabel A.

Zoek jij een woning waar je direct van kunt genieten, zonder gedoe? Dan is Korenmolen 1 precies wat je zoekt. Deze ruime, volledig gemoderniseerde tussenwoning ligt in de rustige en kindvriendelijke wijk 'Grevekeur' in Schijndel, een fijne plek om op te groeien, met speelruimte in de straat en alles op loopafstand.
De woning is de afgelopen jaren met zorg en smaak aangepakt en straalt dat ook uit: van de moderne keuken tot de luxe badkamer, van de verzorgde tuin tot de goed doordachte installaties, hier is aan alles gedacht.

Ligging
De Korenmolen ligt in een doodlopende straat, wat zorgt voor rust en veiligheid. Basisscholen, kinderopvang en dagelijkse voorzieningen zijn op loopafstand te vinden. Het gezellige centrum van Schijndel is binnen enkele minuten bereikbaar, en voor wie pendelt richting 's-Hertogenbosch of Eindhoven: beide steden zijn snel en gemakkelijk te bereiken.

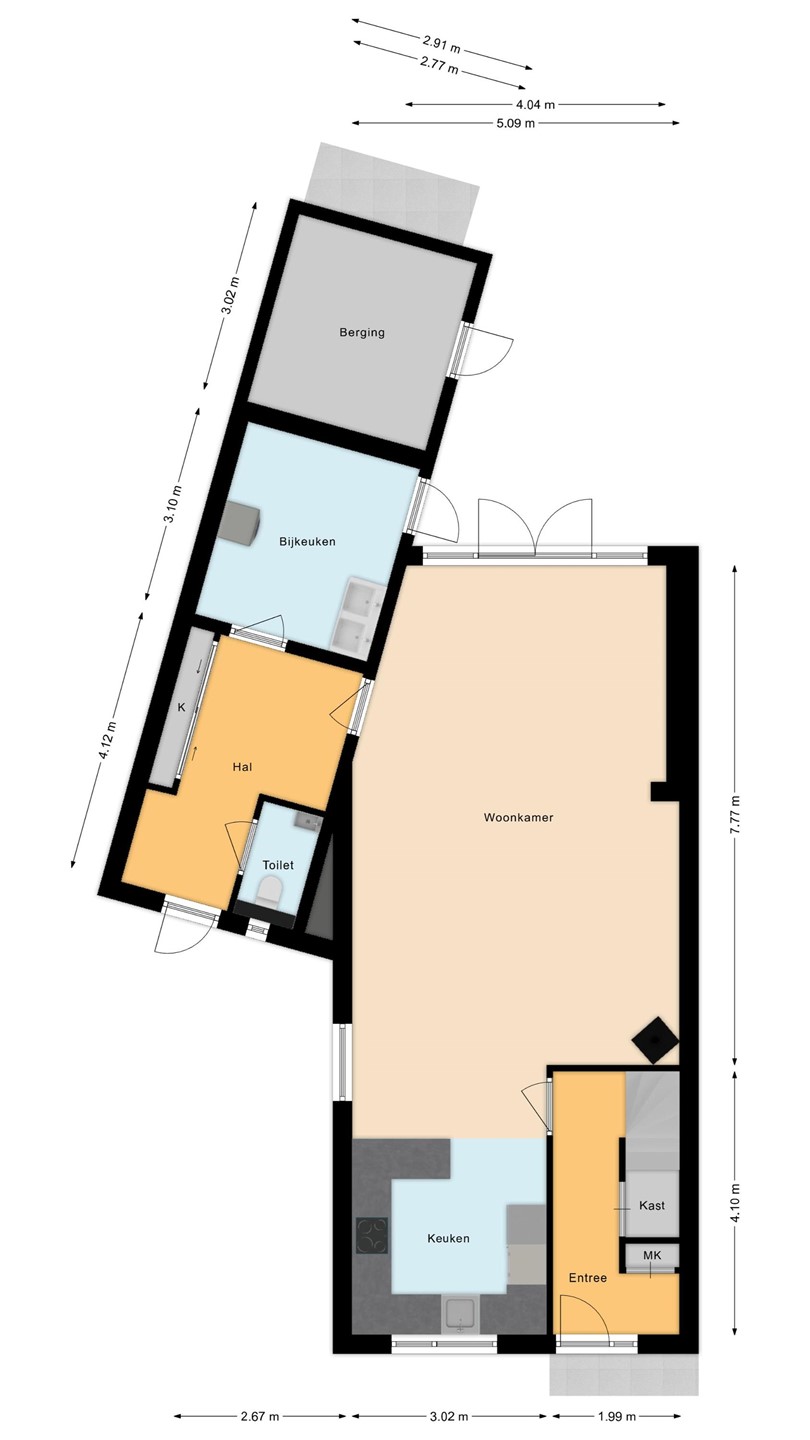
Begane grond
Via de entree kom je in een ruime hal met meterkast. De moderne keuken met landelijke uitstraling is in 2018 geplaatst en is uitgevoerd in een hoekopstelling met een eikenhouten werkblad, donkere frontjes en diverse inbouwapparatuur, inclusief een handige bartafel. De lichte woonkamer is dankzij de uitbouw over de volledige breedte royaal van formaat en staat via grote openslaande deuren in directe verbinding met de achtertuin. Een groot screen aan de achterzijde zorgt voor optimale zonbescherming op warme dagen. Overal op de begane grond is vloerverwarming aanwezig. De voormalige garage is slim verbouwd tot een praktische bijkeuken met toilet, berging en wasmachineaansluiting, ideaal voor een druk gezin. De houtkachel in de woonkamer maakt het plaatje compleet voor gezellige winteravonden.

Eerste verdieping
Op de eerste verdieping bevinden zich twee goed bemeten slaapkamers. De ouderslaapkamer met dakkapel is voorzien van een fraaie opmaat gemaakte inloopkast. De luxe badkamer uit 2020 is voorzien van een ruime inloopdouche met regendouche, een stijlvolle dubbele wastafel met meubel, vloerverwarming, mechanische ventilatie en een vrijhangend toilet.

Tweede verdieping
Via een vaste trap bereik je de tweede verdieping, waar zich de derde slaapkamer bevindt, een lichte ruimte met een Velux dakraam en volop daglicht. Op de overloop is een airconditioning geplaatst voor een aangenaam klimaat op de warme zomerdagen. Rondom de overloop is bovendien ruime bergcapaciteit aanwezig, ideaal als extra opslag.

Tuin
De verzorgde achtertuin ligt op het zuidoosten en geniet daardoor een groot deel van de dag van de zon. De tuin is smaakvol aangelegd met kunstgras, siertegels en groene beplanting langs de borders. De sfeervolle overdekte overkapping met houten wanden is de perfecte plek om ook in het voor- en naseizoen buiten te zitten en te genieten. Hier is tevens een aansluiting voor het ophangen van een TV.
Er is een achterom aanwezig.

Bijzonderheden
- Bouwjaar 1987, volledig gemoderniseerd en instapklaar
- Woonoppervlakte ca. 129 m², perceeloppervlakte 160 m²
- Energielabel A
- Uitbouw woonkamer over de volle breedte (2018)
- Voormalige garage verbouwd tot bijkeuken en berging (2018)
- Luxe badkamer (2020) met ruime inloopdouche en dubbele wastafel
- Moderne keuken (2018) met eikenhouten werkblad en inbouwapparatuur
- Verzorgde achtertuin op het zuidoosten met achterom
- CV-installatie Intergas Xtreme 36 CW5 (2024)
- Vloerverwarming op gehele begane grond en in de badkamer
- 12 zonnepanelen Suntech 405 Wp (2023), jaaropbrengst ca. 3.800 kWh, nog 13 jaar garantie
- Gevels geïsoleerd met steenwol, vloer 8–10 cm PIR, daken 8 cm PIR
- Gehele woning voorzien van HR++ beglazing
- Elektra begane grond volledig vernieuwd inclusief meterkast (2018)
- Mechanische ventilatie (2022)
- Rookmelders aanwezig op iedere verdieping
- Aanvaarding in overleg

Kaart

Kenmerken

Overdracht

Vraagprijs
€ 495.000,- k.k.
Status
Verkocht onder voorbehoud
Aanvaarding
In overleg
Aangeboden sinds
Donderdag 5 maart 2026
Laatste wijziging
Woensdag 18 maart 2026

Bouw

Type object
Eengezinswoning, woonhuis, hoekwoning
Soort bouw
Bestaande bouw
Bouwjaar
1987
Dakbedekking
Dakpannen
Type dak
Zadeldak
Isolatievormen
Dakisolatie
Muurisolatie
Vloerisolatie
Volledig geïsoleerd

Oppervlaktes en inhoud

Perceeloppervlakte
280 m²
Woonoppervlakte
129 m²
Woonkameroppervlakte
40 m²
Inhoud
493 m³
Oppervlakte overige inpandige ruimten
9 m²
Oppervlakte gebouwgebonden buitenruimte
4 m²
Tuinoppervlakte
154 m²

Indeling

Aantal bouwlagen
3
Aantal kamers
4 (waarvan 3 slaapkamers)

Locatie

Ligging
Aan rustige weg
In woonwijk

Tuin

Type
Achtertuin
Hoofdtuin
Ja
Oriëntering
Zuidoost
Heeft een achterom
Ja
Staat
Goed onderhouden
Tuin 2 - Type
Achtertuin
Tuin 2 - Staat
Goed onderhouden
Tuin 3 - Type
Voortuin
Tuin 3 - Staat
Goed onderhouden
Tuin 4 - Type
Zijtuin
Tuin 4 - Staat
Goed onderhouden

Energieverbruik

Energielabel
A

CV ketel

CV ketel
Intergas Xtreme 36 CW5
Warmtebron
Gas
Bouwjaar
2024
Combiketel
Ja
Eigendom
Eigendom

Uitrusting

Aantal parkeerplaatsen
1
Warm water
CV-ketel
Verwarmingssysteem
Centrale verwarming
Houtkachel
Badkamervoorzieningen
Dubbele wastafel
Inloopdouche
Toilet
Heeft kabel-tv
Ja
Heeft een rookkanaal
Ja
Glasvezelaansluiting aanwezig
Ja
Tuin aanwezig
Ja
Heeft rolluiken
Ja
Heeft schuur/berging
Ja
Heeft een dakraam
Ja
Heeft zonnecollectoren
Ja
Heeft ventilatie
Ja

Kadastrale gegevens

Kadastrale aanduiding
Schijndel H 4562
Perceeloppervlakte
280 m²
Omvang
Geheel perceel
Eigendomsituatie
Eigen grond